项目详情
>
贝尔格莱德机场主消防站
一座专为追求速度、清晰度和作战准备状态而设计的高性能应急设施。
创造的价值
全新的9号主消防站是一座坚固、高效且标识清晰度极高的应急设施,专为满足大型国际机场的实际运营需求而设计。该项目通过优先考虑响应速度、功能清晰度以及恰当的环境策略,强化了贝尔格莱德机场的安全基础设施,并为消防员提供了一个专为提升战备状态、工作表现和抗风险能力而打造的专用环境。
项目概述
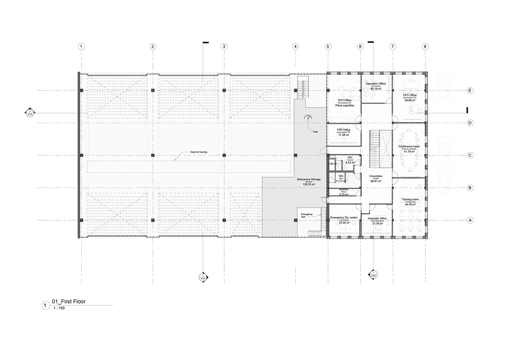
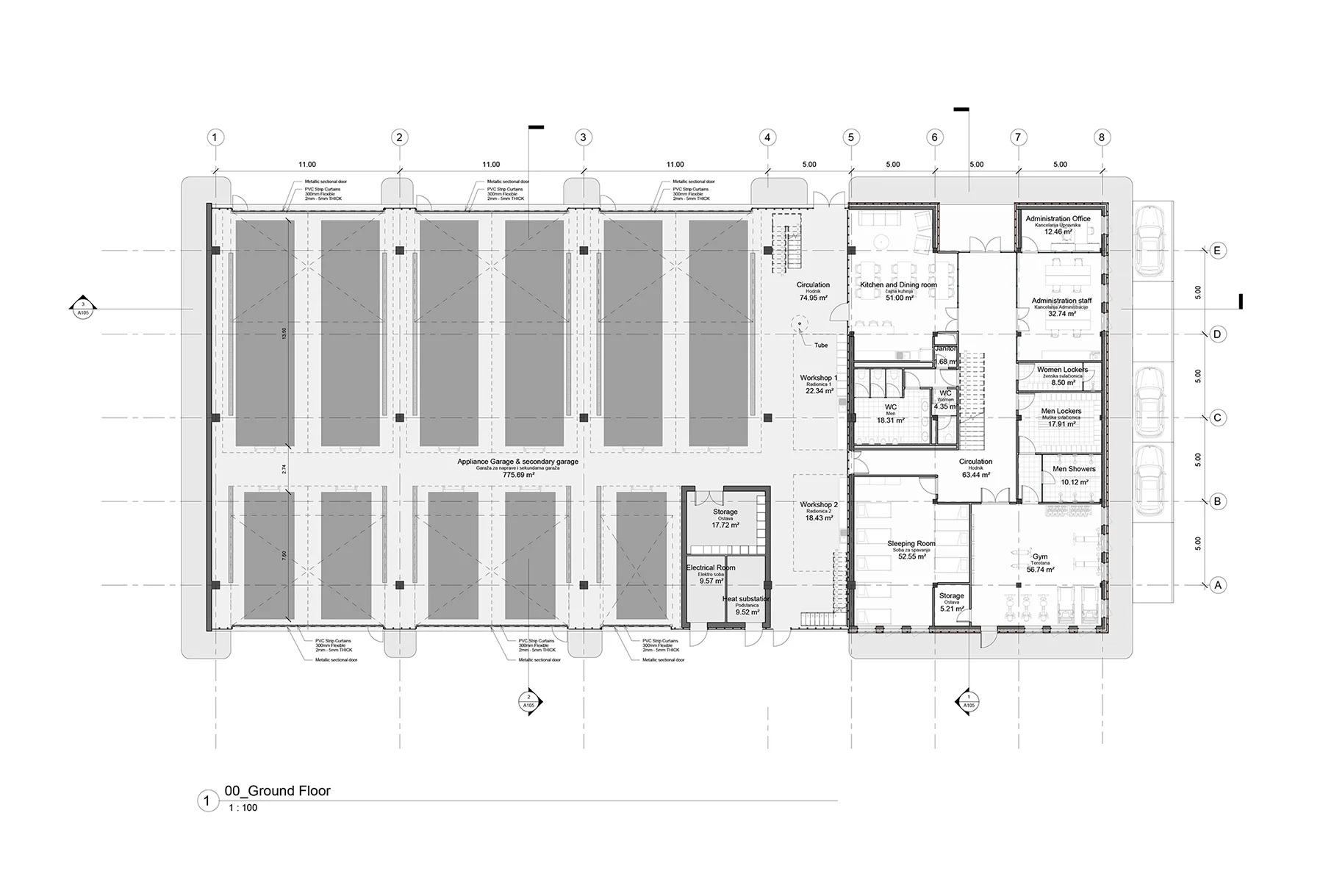
2019年,1PAX受维尼奇机场塞尔维亚公司/贝尔格莱德机场委托,负责设计尼古拉·特斯拉机场的新主消防站。该项目包括一座专为机场消防员建造的两层建筑,内设办公室及公共区域,被视为机场安全与应急响应基础设施的关键组成部分。
主要挑战
核心挑战在于设计一座建筑,既能在紧急情况下实现快速响应和无缝协调,又能明确划分具有不同环境和技术要求的功能区域。这座消防站需要在严苛的机场环境中,兼顾高效的运营效能、消防员的福祉以及长期的耐久性。
我们的方法
1PAX 将建筑划分为两个界限分明的区域。起居与工作区被设计为一个具有隔热功能的空间,为办公室、休息区和公共设施提供了舒适的环境。相比之下,消防车库则被设计为自然通风的空间,旨在优化车辆待命状态并确保快速出动。
经过精心设计的内部连接通道将两个区域连接起来,同时保持其相互隔离,从而既确保了功能效率,又实现了环境控制。流通路径和空间布局的规划旨在最大限度地缩短响应时间,使消防员能够迅速从休息区或工作区移动到行动位置。
地点
塞尔维亚贝尔格莱德
年
-
2019
状态
工程暂停
客户
维尼奇机场塞尔维亚公司 / 贝尔格莱德机场
建筑师
1AX
区域
1811.00
m2
成本
1000万欧元
服务
工业建筑
团队成员








