Airports & Railstations

New Stainless Steel and Glazed Facades, Bordeaux International Airport

Mérignac, France
Project Details
>
New Stainless Steel and Glazed Facades, Bordeaux International Airport

Reinstating transparency and architectural integrity through a technically refined façade reconstruction.

Value Delivered

The reconstructed façades restore Hall B’s iconic transparency and architectural clarity while significantly improving structural reliability and longevity. Through a sensitive balance of heritage respect, technical innovation, and operational coordination, the project delivers a renewed terminal envelope that meets contemporary standards without compromising its original identity. The result reinforces Bordeaux–Mérignac Airport’s architectural legacy while ensuring resilience and performance for decades to come.

Project Overview

Completed in 2023, this project involved the demolition and reconstruction of the façades of Hall B at Bordeaux–Mérignac Airport, originally designed in the 1990s by architect Paul Andreu. Commissioned by Aéroport de Bordeaux Mérignac, the intervention was led by 1PAX in collaboration with KAIRN, with Coveris as contractor. The scope covered approximately 1,800 m² of façade and addressed the need to restore both structural reliability and architectural intent within an active terminal environment.

 

Key Challenge

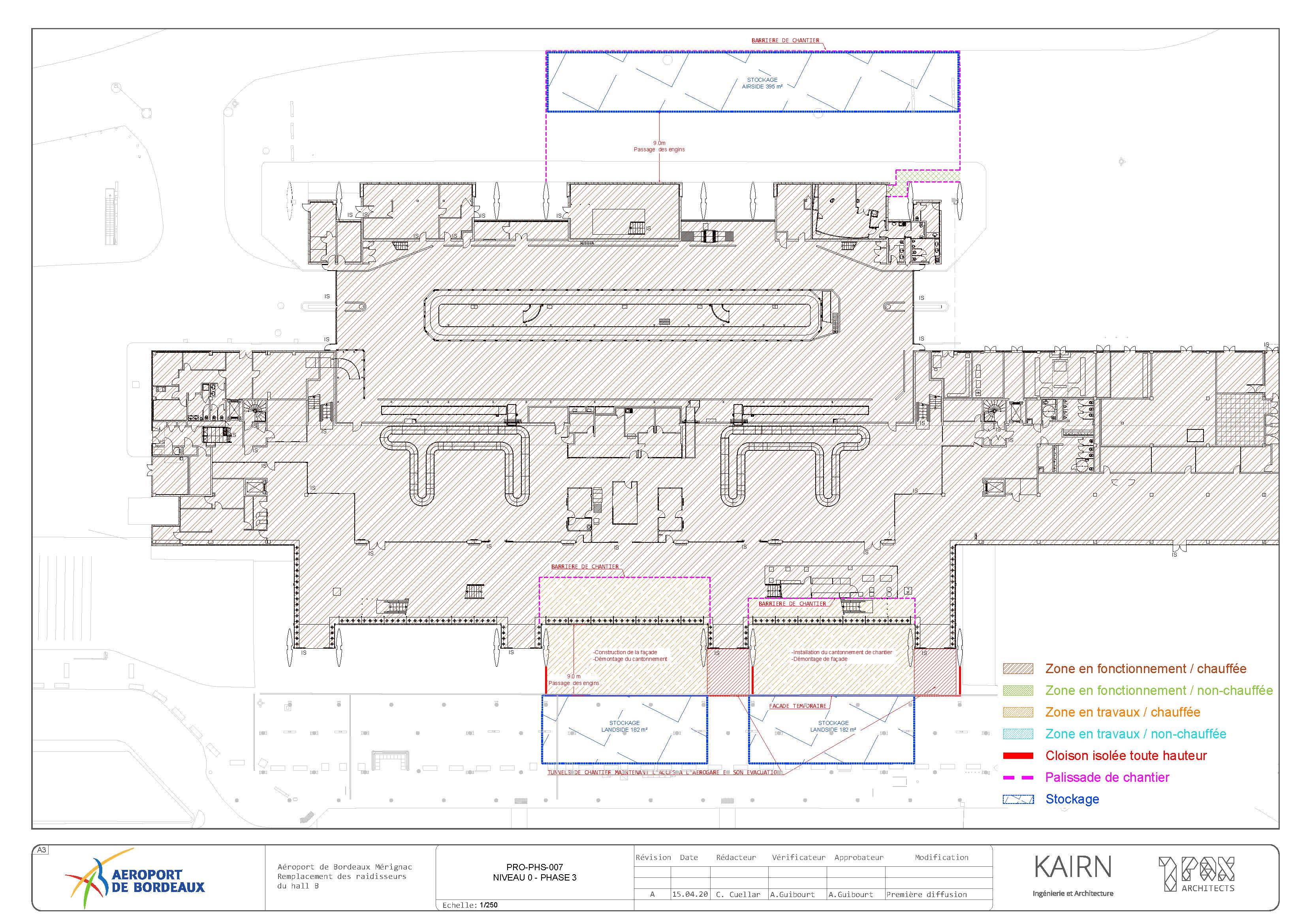
The original glass façade system, characterized by large transparent panels held by structural stiffeners, had suffered damage over time, making full replacement unavoidable. The challenge was to reconstruct the façade while preserving the original concept of transparency and lightness, managing complex technical constraints—including experimental validation (ATEX)—and maintaining uninterrupted terminal operations throughout construction.

Our Approach

1PAX developed a façade strategy that carefully respected Paul Andreu’s original architectural vision. New steel stiffeners were designed and encased in polished stainless-steel cladding, maintaining visual continuity while enhancing durability and performance. The technical complexity of the façade system required rigorous testing and validation, ensuring compliance with safety and performance standards.

Construction phasing was meticulously coordinated to allow the terminal to remain operational, minimizing disruption to passengers and airport activities while ensuring precise execution of the new envelope.

Place
Mérignac, France
Year
Status
Under Construction
Client
Aéroport de Bordeaux Mérignac
Architect
1PAX, KAIRN
Area
1800
m2
Partners
Contractor Coveris
Service
Airports & Railstations
Team Members
1PAX Team
Team Leader
No items found.