Prevođenje obnovljenog identiteta brenda u koherentno korisničko iskustvo zasnovano na tehnologiji u nacionalnoj bankarskoj mreži.
Isporučena vrednost
Pregled projekta
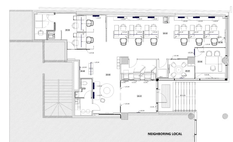
U 2025. godini, nakon velike transformacije brenda, AIK banka je naručila 1PAX da dizajnira koncept eksterijera i enterijera za celu svoju mrežu filijala i bankomata širom Srbije. Obim je obuhvatio više od 60 kancelarija širom zemlje i približno 400 bankomata, što predstavlja primarne fizičke dodirne tačke banke sa preko 300.000 klijenata. Zadatak je imao za cilj da transformiše novu viziju brenda u konzistentno, funkcionalno i prepoznatljivo prostorno iskustvo.
Ključni izazov
Osnovni izazov bio je osigurati uniformnost i jasnoću u velikoj i raznovrsnoj mreži, istovremeno omogućavajući svakoj filijali i bankomatu da pruže moderno, gostoljubivo i efikasno korisničko iskustvo. Dizajn je trebao odražavati obnovljeni identitet AIK banke, integrirati razvijajuće tehnologije digitalnog bankarstva i ostati prilagodljiv različitim urbanim i arhitektonskim kontekstima širom zemlje.
Naš pristup
1PAX je započeo sa dubinskom fazom istraživanja i analize, blisko sarađujući sa rukovodstvom AIK banke i ključnim zainteresovanim stranama kako bi razumeo kulturu, vrednosti i strateške ambicije institucije. Na osnovu ove osnove, tim je razvio koncept dizajna definisan konzistentnošću, jednostavnošću i čitljivošću. Inovativni materijali i integrisane tehnologije korišćeni su za poboljšanje upotrebljivosti i udobnosti, dok je sveobuhvatan sistem signalizacije i grafički jezik osigurao vizuelnu koherentnost u svim filijalama i bankomatima. Svaki element - od fasada do enterijera i interfejsa - zamišljen je kao deo jedinstvenog putovanja kupaca.









